| Prijs | € 975.000,- k.k. |
| Type object | Woonhuis, woonboerderij, vrijstaande woning |
| Perceeloppervlakte | 4.655 m² |
| Woonoppervlakte | 300 m² |
| Aanvaarding | In overleg |
| Status | Verkocht |
Sfeervolle riant woonboerderij met gastenverblijf en schuur op een mooi perceel gesitueerd aan de rand van Geffen. Unieke kans voor de paarden- cq. dierenliefhebber dan wel iemand met beroep aan huis!
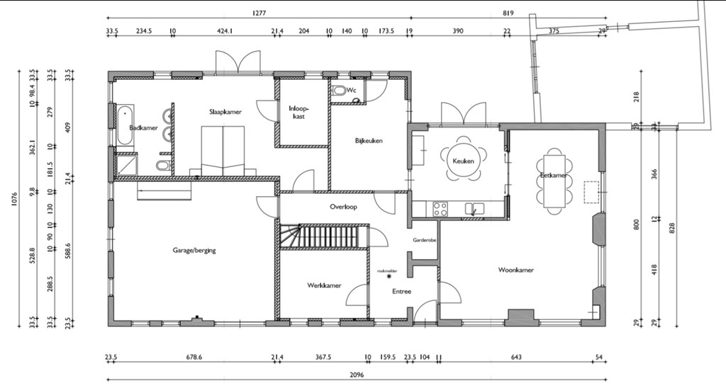
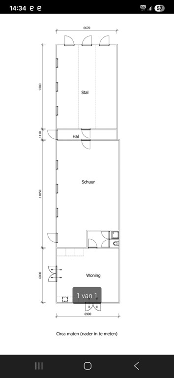
Entreehal met garderobe en bergruimte (trapkast). Werkkamer. Slaapkamer met inloopkast en aangrenzende complete badkamer met ligbad, wastafelmeubel, toilet en douche. Openslaande deuren met zicht op het achterperceel. Bijkeuken met keukenblok en toilet. Gezellige woonkeuken met zicht op de achtergelegen grond (tuindeuren). Riante sfeervolle woonkamer met gashaard en tuindeuren naar de zijtuin. Inpandige garage/berging. Gastenverblijf met verblijfruimte, douche en toilet. Grote schuur, bergruimte in voormalige stal.
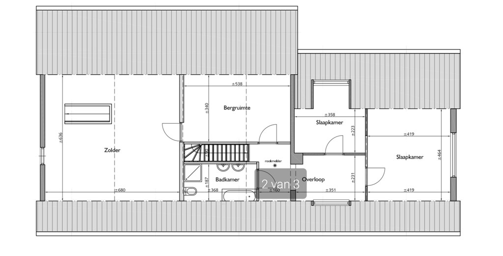
Overloop. Drie riante slaapkamers. Bergruimte (eventueel in te richten als badkamer). Grote zolder/bergruimte. CV combiketel Nefit 2010.
Gezellige beschutte zijtuin aangrenzend aan de woonkamer (tuindeuren). Achtertuin met zicht op het aangenzende weiland.
- Uitstekende locatie tegen het dorp Geffen aan gesitueerd; - Sfeervolle omstreeks 2010 van binnen geheel gerenoveerde woonboerderij; - Prachtig perceel gelegen aan de achterzijde en bereikbaar via de poort gelegen aan de zijkant van de boerderij; - Gastenverblijf met eigen sanitaire voorzieningen; - Riante schuur met mogelijkheden;
| Referentienummer | 00244 |
| Vraagprijs | € 975.000,- k.k. |
| Inrichting | Niet gestoffeerd |
| Inrichting | Niet gemeubileerd |
| Status | Verkocht |
| Aanvaarding | In overleg |
| Aangeboden sinds | Zaterdag 27 september 2025 |
| Laatste wijziging | Maandag 1 december 2025 |
| Type object | Woonhuis, woonboerderij, vrijstaande woning |
| Soort bouw | Bestaande bouw |
| Bouwperiode | 1920 |
| Dakbedekking | Dakpannen |
| Type dak | Zadeldak |
| Isolatievormen | Dakisolatie Grotendeels dubbel glas Muurisolatie Vloerisolatie |
| Perceeloppervlakte | 4.655 m² |
| Woonoppervlakte | 300 m² |
| Inhoud | 950 m³ |
| Oppervlakte externe bergruimte | 190 m² |
| Aantal bouwlagen | 2 |
| Aantal kamers | 5 (waarvan 4 slaapkamers) |
| Aantal badkamers | 1 (en 1 apart toilet) |
| Ligging | Aan rustige weg Buiten bebouwde kom Dichtbij openbaar vervoer Nabij school Nabij snelweg Open ligging Platteland Vrij uitzicht Zelfstandig |
| Type | Open ruimte |
| Oriëntering | Oosten |
| Tuin 2 - Type | Zijtuin |
| Tuin 2 - Oriëntering | Zuiden |
| Tuin 2 - Staat | Normaal |
| Energielabel | D |
| CV ketel | Nefit |
| Warmtebron | Gas |
| Bouwjaar | 2010 |
| Combiketel | Ja |
| Eigendom | Eigendom |
| Aantal parkeerplaatsen | 6 |
| Warm water | CV-ketel |
| Verwarmingssysteem | Centrale verwarming Gashaard Vaste brandstof Vloerverwarming |
| Ventilatie methode | Natuurlijke ventilatie |
| Badkamervoorzieningen | Douche Ligbad Toilet Wastafelmeubel |
| Heeft kabel-tv | Ja |
| Heeft een rookkanaal | Ja |
| Glasvezelaansluiting aanwezig | Ja |
| Tuin aanwezig | Ja |
| Telefoonaansluiting aanwezig | Ja |
| Beschikt over een internetverbinding | Ja |
| Heeft schuur/berging | Ja |
| Heeft een dakraam | Ja |
| Heeft een schuifpui | Ja |
| Heeft zonwering | Ja |
| Kadastrale aanduiding | Geffen D 1374 |
| Perceeloppervlakte | 4.655 m² |
| Omvang | Geheel perceel |
| Eigendomsituatie | Eigen grond |