| Prijs | € 424.000,- k.k. |
| Type object | Woonhuis, eengezinswoning, tussenwoning |
| Perceeloppervlakte | 175 m² |
| Woonoppervlakte | 122 m² |
| Aanvaarding | In overleg |
| Status | Verkocht onder voorbehoud |
Sfeervolle tussenwoning met twee garages op een fijne locatie in de Ruwaard gesitueerd. Op zoek naar een complete woning op een goede locatie in Oss met twee garages? Aan de fijne Van Maanenstraat vind je deze sfeervolle woning met bruikbare zolder (vier slaapkamers!) en twee garages. Hier geniet je van alle gemakken: rustig wonen met het winkelcentrum op loopafstand.
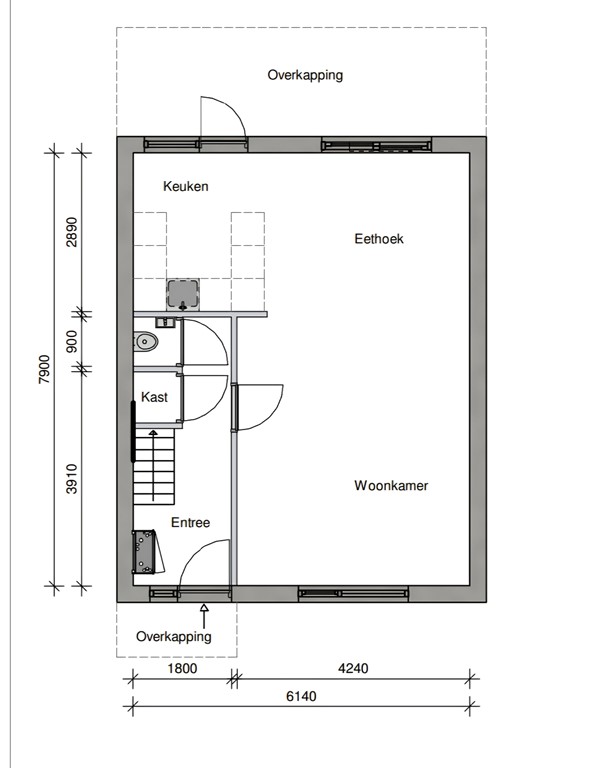
Begane grond: Via de entree kom je in de hal. Hier bevinden zich het toilet, de proviandkast/trapkast en de meterkast. De woonkamer is licht van uitvoering. De open keuken is gebouwd in een U-vorm en beschikt over inbouwapparatuur. De gezellige tuin met praktisch overkapping aan de woning is op het zuid-oosten gesitueerd. Achter de tuin bevinden zich de twee garages.
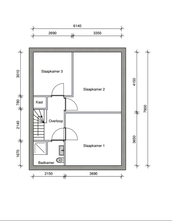
De overloop, met kastruimte, biedt toegang tot de drie slaapkamers en de badkamer. De badkamer beschikt over een douche, een toilet en een wastafelmeubel.
Voorzolder met praktische bergruimte waarin de wasmachine-aansluiting en de cv combiketel (Intergas 2023) zich bevinden. Een deur biedt toegang tot de royale slaapkamer met dakkapel.
Met overkapping en zonnig gesitueerd op het zuid-oosten.
- Twee garages; - Veel kozijnen vervangen in 2025 (kunststof kozijnen); - 9-tal zonnepanelen aanwezig; - Dakkapel op zolder; - Prima ligging aan de Van Maanenstraat; - Winkelcentra alsmede natuur in de buurt.
| Referentienummer | 00248 |
| Vraagprijs | € 424.000,- k.k. |
| Status | Verkocht onder voorbehoud |
| Aanvaarding | In overleg |
| Aangeboden sinds | Vrijdag 20 maart 2026 |
| Laatste wijziging | Vrijdag 24 april 2026 |
| Type object | Woonhuis, eengezinswoning, tussenwoning |
| Soort bouw | Bestaande bouw |
| Bouwperiode | 1971 |
| Dakbedekking | Bitumen Dakpannen |
| Type dak | Zadeldak |
| Isolatievormen | Dakisolatie Driedubbel glas Gedeeltelijk dubbel glas Spouwmuren |
| Perceeloppervlakte | 175 m² |
| Woonoppervlakte | 122 m² |
| Inhoud | 400 m³ |
| Oppervlakte externe bergruimte | 30 m² |
| Aantal bouwlagen | 3 |
| Aantal kamers | 5 (waarvan 4 slaapkamers) |
| Aantal badkamers | 1 (en 1 apart toilet) |
| Type | Achtertuin |
| Hoofdtuin | Ja |
| Oriëntering | Zuidoost |
| Heeft een achterom | Ja |
| Staat | Normaal |
| Tuin 2 - Type | Achtertuin |
| Tuin 2 - Oriëntering | Noord west |
| Tuin 2 - Staat | Normaal |
| Energielabel | A |
| CV ketel | Intergas |
| Warmtebron | Gas |
| Bouwjaar | 2023 |
| Combiketel | Ja |
| Eigendom | Eigendom |
| Aantal parkeerplaatsen | 2 |
| Aantal overdekte parkeerplaatsen | 2 |
| Warm water | CV-ketel |
| Verwarmingssysteem | Centrale verwarming Vaste brandstof Vloerverwarming (gedeeltelijk) Zonnecollectoren |
| Ventilatie methode | Natuurlijke ventilatie |
| Badkamervoorzieningen | Douche Toilet Wastafelmeubel |
| Parkeergelegenheid | Garage Garagebox |
| Heeft een alarm | Ja |
| Heeft kabel-tv | Ja |
| Glasvezelaansluiting aanwezig | Ja |
| Tuin aanwezig | Ja |
| Heeft een garage | Ja |
| Telefoonaansluiting aanwezig | Ja |
| Beschikt over een internetverbinding | Ja |
| Heeft een schuifpui | Ja |
| Heeft zonnepanelen | Ja |
| Kadastrale aanduiding | Oss L 4498 |
| Perceeloppervlakte | 20 m² |
| Omvang | Geheel perceel |
| Eigendomsituatie | Eigen grond |
| Kadastrale aanduiding | Oss L 4231 |
| Perceeloppervlakte | 155 m² |
| Omvang | Geheel perceel |
| Eigendomsituatie | Eigen grond |