| Prijs | € 895.000,- k.k. |
| Type object | Woonhuis, eengezinswoning, geschakelde woning |
| Perceeloppervlakte | 402 m² |
| Woonoppervlakte | 190 m² |
| Aanvaarding | In overleg |
| Status | Verkocht |
Prachtig gesitueerde luxe energiezuinige vrijstaand geschakelde woning. Op zoek naar een royale woning met 5 slaapkamers en van alle denkbare luxe voorzien? Op een schitterende hoeklocatie in een jonge woonwijk vind je deze sfeervolle woning voorzien van alle extra's. Hier geniet je van alle gemakken: rustig en royaal wonen op een prachtige plek. In de gewilde kindvriendelijke Sonniuswijk te Son en Breugel gelegen. Alle voorzieningen zoals winkels en scholen bevinden zich in de buurt. Een groene omgeving met de Dommel op loopafstand.
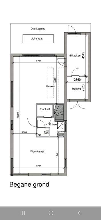
Via de entree komt je in de hal. Hier bevinden zich de meterkast met waterontharder, het toilet en de proviandkast. Royale woonkamer met sfeervolle gashaard en met een hoekraam waardoor er een fantastisch zicht op de tegenoverliggende parkvijver is. Luxe complete keuken (Koelkast, vriezer, vaatwasmachine, inductiekookplaat Bora, Quooker) met spoeleiland en heeft een warme uitstraling. De (voormalige) garage bestaat uit twee delen, een berging en een bijkeuken. De bijkeuken is bruikbaar als kantoor- of speelruimte. Aan de achterzijde is een gezellige grote overkapping (met lichtstraat) over de gehele breedte van het huis gerealiseerd. Prachtig aangelegde tuin. Aan de achterzijde is zowel de woonkamer als de garage uitgebouwd.
Overloop met apart toilet. Ruime hoofdslaapkamer met aangrenzend een riante inloopkast. Twee ruime slaapkamers aan de voorzijde van de woning. Elke slaapkamer is voorzien van een eigen thermostaat voor de vloerverwarming. Geheel betegelde badkamer met inloopdouche, kastruimte en dubbel wastafelmeubel.
Overloop met bergruimte. Tweetal grote slaapkamers waarvan één met dakkapel en één met een tweetal dakramen. In één van de kamers zijn de warmtepomp, boiler, WTW en wasmachineaansluiting en droger aanwezig.
Fraai aangelegde tuin, zowel aan de voorzijde, de zijkant en aan de achterzijde.
- Uitermate sfeervolle en ruime woning; - Magnifiek uitzicht door de fraaie hoekligging; - Gasloze energiezuinige woning (A+++ Energielabel); - Ruimtes separaat verwarmbaar met thermostaten; - Gashaard (!) middels constructie met gasflessen; - Drie verdiepingen voorzien van vloerverwarming; - Oprit met ruimte voor twee auto's; - De voormalige garage is thans praktisch verdeeld in een berging en een bijkeuken; - Openbare parkeerruimte naastgelegen; - 14 Zonnepanelen (2023) aanwezig.
| Referentienummer | 00246 |
| Vraagprijs | € 895.000,- k.k. |
| Inrichting | Niet gestoffeerd |
| Inrichting | Niet gemeubileerd |
| Status | Verkocht |
| Aanvaarding | In overleg |
| Aangeboden sinds | Woensdag 21 januari 2026 |
| Laatste wijziging | Woensdag 4 maart 2026 |
| Type object | Woonhuis, eengezinswoning, geschakelde woning |
| Soort bouw | Bestaande bouw |
| Bouwperiode | 2022 |
| Dakbedekking | Bitumen Dakpannen |
| Type dak | Zadeldak |
| Isolatievormen | Ankerloze spouwmuren Dakisolatie Dubbel glas HR-glas Muurisolatie Spouwmuren Vloerisolatie Volledig geïsoleerd |
| Perceeloppervlakte | 402 m² |
| Woonoppervlakte | 190 m² |
| Inhoud | 700 m³ |
| Aantal bouwlagen | 3 |
| Aantal kamers | 6 (waarvan 5 slaapkamers) |
| Aantal toiletten | 1 |
| Ligging | Aan park Aan rustige weg Aan water Dichtbij openbaar vervoer In woonwijk Nabij school Nabij snelweg Vrij uitzicht Zelfstandig |
| Type | Achtertuin |
| Hoofdtuin | Ja |
| Oriëntering | West |
| Heeft een achterom | Ja |
| Staat | Prachtig aangelegd |
| Tuin 2 - Type | Voortuin |
| Tuin 2 - Oriëntering | Oosten |
| Tuin 2 - Staat | Prachtig aangelegd |
| Energielabel | A+++ |
| Aantal parkeerplaatsen | 2 |
| Warm water | Zonnecollectoren |
| Verwarmingssysteem | Gashaard Vloerverwarming Warmtepomp Warmterecuperatiesysteem |
| Ventilatie methode | Mechanische ventilatie Natuurlijke ventilatie |
| Keukenvoorzieningen | Inbouwapparatuur Spoeleiland |
| Parkeergelegenheid | Aangebouwde stenen garage |
| Heeft kabel-tv | Ja |
| Heeft een rookkanaal | Ja |
| Glasvezelaansluiting aanwezig | Ja |
| Tuin aanwezig | Ja |
| Heeft een garage | Ja |
| Telefoonaansluiting aanwezig | Ja |
| Beschikt over een internetverbinding | Ja |
| Heeft een dakraam | Ja |
| Heeft zonnepanelen | Ja |
| Heeft ventilatie | Ja |
| Kadastrale aanduiding | Son G 1556 |
| Perceeloppervlakte | 402 m² |
| Omvang | Geheel perceel |
| Eigendomsituatie | Eigen grond |